- Tipo di proprietà: Appartamento
- Tipo di offerta: Vendita
- Città: ROMA
- CAP: 00161
- Bagni: 3
- Locali: 8
- Superficie: 152
- Anno di costruzione: 1966
- Classe Energetica: Classe F
Caratteristiche
- Esposizione doppia
Dettagli
IN TRATTATIVA!!
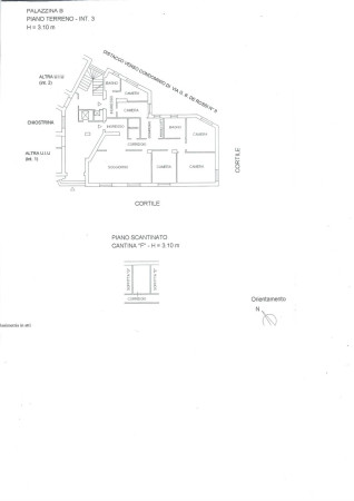
Appartamento piano terra
Via Alessandro Torlonia, in posizione privilegiata, a pochi metri da Villa Torlonia ed al centro di Roma, l’ Atreemme Immobiliare propone in vendita un ampio e comodo appartamento posto al piano terra all’ interno di uno stabile in cortina con servizio di portineria. L’ immobile ha due accessi, anche da Via Giovanni Battista De Rossi, è composto da doppio ingresso, ampio soggiorno, corridoio, cucina, cinque camere, 3 bagni, disimpegno. Ristrutturato di recente, climatizzato, dotato di grate di sicurezza, tripla esposizione con affacci riservati. La proprietà si completa con una comoda cantina di otto metri quadri. Prezzo affare! In nostra esclusiva. Siamo aperti tutti i giorni anche il sabato. Per informazioni telefonare al 334 65 21 953
- ID: 5310
- Pubblicato: Settembre 30, 2025
- Ultimo aggiornamento: Ottobre 16, 2025
- Visite: 153
Proprietà correlata
NUOVA COSTRUZIONE APPARTAMENTO INDIPENDENTE
via Aurelia, 108
NUOVA COSTRUZIONE APPARTAMENTO INDIPENDENTE
via Aurelia, 108
NUOVA COSTRUZIONE APPARTAMENTO INDIPENDENTE
via Aurelia, 108
NUOVA COSTRUZIONE SECONDA FILA DAL MARE
via Aurelia, 108
NUOVA COSTRUZIONE APPANTAMENTO CON GIARDINO E PISCINA
via Aurelia, 108